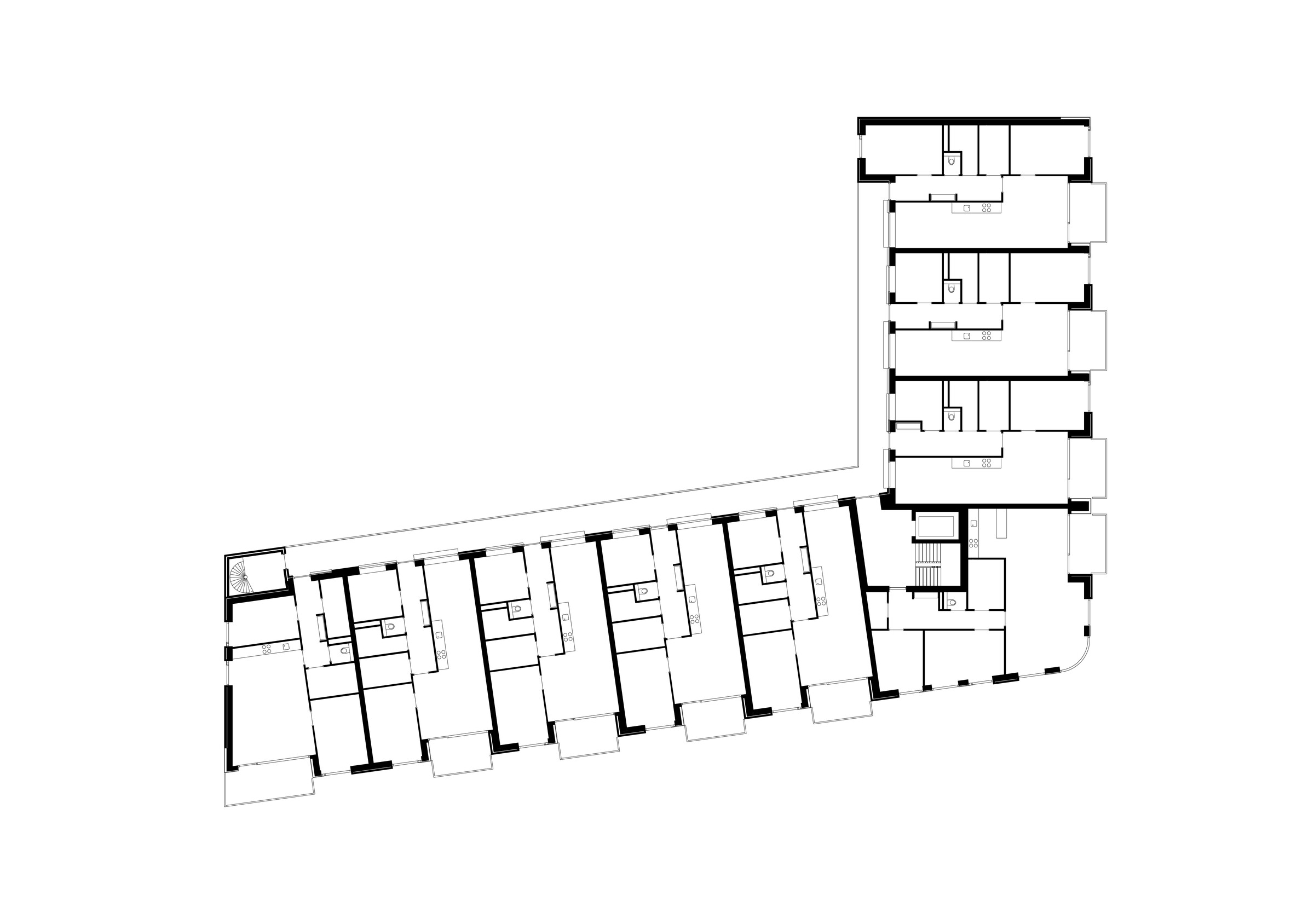
Rijnvliet Midden
The new garden village of Rijnvliet lies on the green edge of Leidsche Rijn. In collaboration with De Zwarte Hond (responsible for the urban plan and architectural supervision) Bedaux de Brouwer Architecten, Hans Been Architecten and Zecc designed this green neighbourhood of Utrecht. Van Wanrooij Bouw & Ontwikkeling commissioned Zecc to design 33 rental apartments and 6 freestanding houses as white ‘specials’.
The beacons of Rijnvliet!
The specials are positioned as ‘beacons’ on prominent sites around the neighbourhood and stand out on account of their striking architecture. They terminate the visual axes of various approach roads and manifest themselves as powerfully solid cornerstones of the urban composition. The six distinctive, freestanding villas and the apartment complex, with a rounded corner and large curved windows, act as important landmarks in the neighbourhood.
A fantastic site in green surroundings
The apartment building is set in landscaped surroundings on a solid plinth, allowing the greenery to reach right up to the facade. Tall living spaces occupy the main floor on this plinth. The dual-aspect apartments on the upper floors have half-recessed balconies and enjoy a panoramic view of the green surroundings. The villas consist of two rectangular interlocking volumes. Facing in all directions, they turn the corners of the neighbourhood into points of visual interest. At the same time, residents can experience the surrounding greenery and water from inside the homes.
The colours and materials used in the homes are perfectly coordinated. The apartment building is wrapped in light-coloured brickwork that recurs in the villas. The timber frames of the openings in the villas exude a warm and natural appearance. One villa deviates from the others and, as a result, stands out more clearly. This house contains a large terrace to the south-west on the second floor and is faced in aubergine-coloured brickwork.
Images: Stijn Poelstra
Render: Beeldenfabriek (birdview)



More Housing
-
Zuidkade Scheveningen
location:Scheveningencategory:Housingm2:4.500client:De Zuid C.V.: MRP Development en VORM OntwikkelingTeam:LEVS architecten, Hoyt architecten, HFB, Van der Ven, Copijn landschapsarchitectenprogram:33 appartments and 670m2 of commercial spaceperiod:2020 – 2025 -
Kruitfabriek Muiden
location:Muidencategory:Housing, Public buildingsm2:7.550client:KNSF Vastgoed en AholdTeam:PHP, Croes, Huygen Installatie, Cauberg Huygenprogram:36 apartments, Albert Heijn, semi-underground parkingperiod:2020 - 2024 -
Eikenstein - Bosvilla
location:Zeistcategory:Housingm2:2.500client:Plegt VosTeam:Nieman, ABM, Strackeeprogram:29 appartmentsperiod:2022 - present -
De Laakse Tuinen
location:Amersfoort Vathorstcategory:Housingm2:23.000client:Heijmans Vastgoed en Klompenburg PlegtTeam:Heijmans Bouw, Klompenburg Bouw, West 8program:178 ground-level homes & 24 apartmentsperiod:2019 - 2023 -
The Waterman
location:Rijswijkcategory:Housingm2:17.000client:BPD OntwikkelingTeam:SWINN, Wolf Dikkenprogram:113 residential houses, underground parking, commercial unitperiod:2022 - present -
Solo Cartesiusdriehoek
location:Utrechtcategory:Housingm2:8.200client:Keystone vastgoedTeam:Wessels Zeist, Pieters bouwtechniek, Ingenieursbureau Deuringprogram:apartments, retailperiod:2018 - 2023 -
De Oude Werf Krimpen
location:Krimpen aan den IJsselcategory:Housingm2:7.500client:De Langen & van den Berg Vastgoed B.VTeam:Jasper Smits, Jos van de Lindeloof, De Langen & van den Bergprogram:48 apartments, 5 townhouses, parking garageperiod:2022 - present -
WITT Woerden
location:Woerdencategory:Housing, Urban researchm2:19.000client:SynchroonTeam:LAP, IMd, BuroBouwfysica, Visscher installatie adviesprogram:38 Ground-level homes, 74 Apartments, built parking and collective yard houseperiod:2017 - 2024 -
De Blauwe Kreken
location:Poeldijkcategory:Housingm2:3.600client:BPD OntwikkelingTeam:Ouwehandprogram:21 Semi-detached Water Villasperiod:2021 - 2024 -
Leidsche Rijn Centrum G8
location:LEIDSCHE RIJN CENTRUM Utrechtcategory:Housingm2:19.000client:BAMTeam:BUREAUVANEIGprogram:178 APARTMENTS, parking garageperiod:2018 - 2023 -
Merwede Canal Zone Utrecht
location:Utrechtcategory:Housingm2:60.000client:AM / SynchroonTeam:Bura Urbanism, LEVS architecten, Paul de Ruiter Architectsperiod:2022 - present -
Cobercokwartier Arnhem
location:Arnhemcategory:Housing, Urban researchm2:16.000client:BPD OntwikkelingTeam:Delva Landscape, Orange Architects, StudioSpaciousprogram:66 apartements, 30 ground-level residencesperiod:2021 - present -
ZAAM - Mauritsstraat
location:Zaandamcategory:Housing, Urban researchm2:13.800client:BorgheseTeam:LAP Landscape & Urban Designprogram:89 apartments and 5 ground-level (town) housesperiod:2021 - present -
Nobelkwartier De Bilt
location:De Biltcategory:Housing, Interior, Public buildingsm2:6.400client:Gemeente De Bilt / H.F. Witte Centrum / WoongroenTeam:IBT, DWA, M3E, Anyverse, Odin Wenting bouwadviesprogram:sportcentre, meeting center with catering, 10 appartements, 8 ggbperiod:2019 - present -
KPN-hof Apeldoorn
location:Apeldoorncategory:Housing, Transformations, Urban researchclient:ExploriusTeam:Flux Landscape, Gemeente Apeldoornprogram:95 residential houses, catering, office, commercial spaceperiod:2023 - present -
Rijnvliet Oost Utrecht
location:Utrechtcategory:Housingm2:14.000client:Van Wanrooij Projectontwikkeling B.V.Team:Van Schijndel Bouwgroep, INBO, JVSTprogram:80 apartments (mid-rent) as part of 198 apartmentsperiod:2019 - 2023 -
Amstelkwartier
location:Amsterdamcategory:Housingm2:19.700client:RochdaleTeam:Kenk architecten, Lindeloof, Hillen en Roosenprogram:205 social rental housing units, 800 m2 of BOG, plinth hospitality, shelter for youth placed out of home, 17 studios for young mothersperiod:2020 - present -
Wisselspoor Utrecht
location:Utrechtcategory:Housingm2:3.150client:SynchroonTeam:Studio Ninedots, Delva Landschape, Space Encounters, Mees Visser, Gebroeders Bloklandprogram:21 ground-level housesperiod:2017 - 2022 -
Janninkkwartier Enschede
location:Enschedecategory:Housingm2:5.375client:Van Wonen VastgoedontwikkelingTeam:Nijhuis Rijssen, Alferink van Schieveen, Peutzprogram:30 free sector rental housesperiod:2018 - 2022 -
De Staalmeester
location:Amersfoort Vathorstcategory:Housingm2:2.350client:Van BekkumTeam:M3E, WSP, Massop, Peutz, Ecoresultprogram:27 apartementsperiod:2020 - present -
Het Duet Amsterdam
location:Amsterdamcategory:Housingm2:17.000client:Eigen HaardTeam:Hillen & Roosenprogram:180 social housingperiod:2022 - present -
De Koningin
location:Zwollecategory:Housingm2:4.000client:Van Wonen VastgoedontwikkelingTeam:Nijhuis Bouw, Alferink van Schieveen, Nieman, Hulstflierprogram:apartments, housingperiod:2016 - 2020 -
Dune tower Porto
location:Almere Duincategory:Housingclient:AmvestTeam:Klunder Architecten, Amvest, ZUS [Zones Urbaines Sensibles]program:102 apartmentsperiod:2020 - present -
W19 Vathorst
location:Amersfoortcategory:Housingclient:De AlliantieTeam:Heijmans Bouw, Olde Rikkert Bouwprogram:32 gallery homes (phase 1) and 21 social rental apartments (phase 2)period:2018 - 2022 -
Duvelhof Tilburg
location:Tilburgcategory:Housing, Transformations, Public buildings, Urban researchm2:8.100Team:Studio REDD, Nico de bont, Hazenberg Bouw, De Bouwecoloogprogram:creative workshop studio's, 20 apartments, commercial space, underground parkingperiod:2020 - present -
Klaprozenweg Amsterdam
location:Amsterdam-Noordcategory:Housing, Public buildingsm2:16.500client:Urban Fabric en Hoorne VastgoedTeam:Buro Ruimprogram:Supermarket, 86 rental apartments, commercial plinth, underground parkingperiod:2022 - present -
BU31 Utrecht
location:Utrechtcategory:Housingm2:4.850client:MBB OntwikkelingTeam:MBB, Lievense-WSP, LBP Sightprogram:46 apartments and parking garageperiod:2011 - 2022 -
Noorderhaven Kade Noord
location:Zutphencategory:Housingm2:21.000client:Heijmans VastgoedTeam:KCAP Architects & Plannersprogram:apartments, dwellingsperiod:2017 - 2021 -
The island Meerstad
location:Groningencategory:Housingm2:5.300Team:LAP Landscape & Urban Designprogram:27 ground-level residencesperiod:2017 - 2021 -
Kruisvaartkade S6
location:Utrechtcategory:Housingclient:MRP Kruisvaartkade BVTeam:VORM ontwikkelt MRP Developmentprogram:apartments and ground-level residencesperiod:2021 - heden -
Ruimzicht Den Haag
location:Den Haagcategory:Housing, Transformationsclient:Staedion/ Heijmans Vastgoedprogram:81 apartmentsperiod:2020 - present -
De Bolder Buiksloterham
location:Amsterdamcategory:Housingm2:4.000client:De AlliantieTeam:Hurksprogram:social housing apartments, multifuctional spaceperiod:2015 - 2020 -
De Ark Tiel
location:Tielcategory:Housingm2:1.500Team:De Bonth van Hulten, Laplab, Ingenieurs bureau van Ierssel -
Tower apartments Meyster's Buiten
location:Utrechtcategory:Housingm2:1.500client:vof. Meyster's BuitenTeam:Vries & Verburg / Vorm bouwprogram:16 apartments of 120 m2period:2011 - 2017 -
-
De Laak
location:Amersfoortcategory:Housingm2:550, 2400client:De AlliantieTeam:Heijmans Bouw, Nieman, Strackeeprogram:apartments, housingperiod:2016 - 2019 -
Care housing Weijerstaete
location:Boxmeercategory:Housingm2:5.600client:Mooiland Vastgoed / Van der HeijdenTeam:Van der Heijden, Fit Ingenieurs, VIACprogram:care apartmentsperiod:2011 - 2016 -
Rijnvliet Midden
location:Utrechtcategory:Housingm2:5600, 240, 300client:Van Wanrooij Projectontwikkeling B.V.Team:De Zwarte Hond, Bedeaux de Brouwer, Hans Been, Felixx Landscape architects & plannersprogram:apartments, housingperiod:2019 - heden -
CPO Zeisterwerf
location:Zeistcategory:Housingm2:4.000client:CPO Vereniging SurplusTeam:Salverda Bouwprogram:apartments, communal areaperiod:2015 - present -
Student housing
location:Utrechtcategory:Housing, TransformationsTeam:Versteeg Utrechtprogram:student housingperiod:2014 - 2016 -
Wanderlust
location:Leidsche Rijn Centrumcategory:Housing, Urban researchm2:11.000client:HBB OntwikkelingTeam:Faro, Delva Landscape, ARUPprogram:apartments, housingperiod:2019 -
Monnickenhof
location:Amersfoortcategory:Housingm2:2.400client:Schipper BoschTeam:Van Bekkumprogram:housingperiod:2015 - 2019 -
Park Zestienhoven
location:Rotterdamcategory:Housing, Urban researchclient:BlauwhoedTeam:Lodewijk Baljonprogram:apartments, dwellings, leisureperiod:2019 -
Eemskwartier
location:Groningencategory:Housing, Urban researchclient:Heijmans VastgoedTeam:Heijmans Bouwprogram:66 houses and 111 apartmentsperiod:2012 - 2017 -
Defence Island
location:Woerdencategory:Housingm2:1.100client:Blauwhoed VormTeam:Karres en Brands, Groosman, Braaksma en Roosprogram:apartments, housingperiod:2017 - 2020 -
Starter Apartments
location:Amersfoortcategory:Housingclient:Heijmans AmersfoortTeam:Heijmans bouwprogram:18 small apartmentsperiod:2005 - 2010 -
Quay Houses
location:Groningencategory:Housingclient:Heijmans AssenTeam:Heijmans Bouwprogram:25 large dwellingsperiod:2004 - begin 2010