Werkspoorfabriek
De Werkspoorfabriek
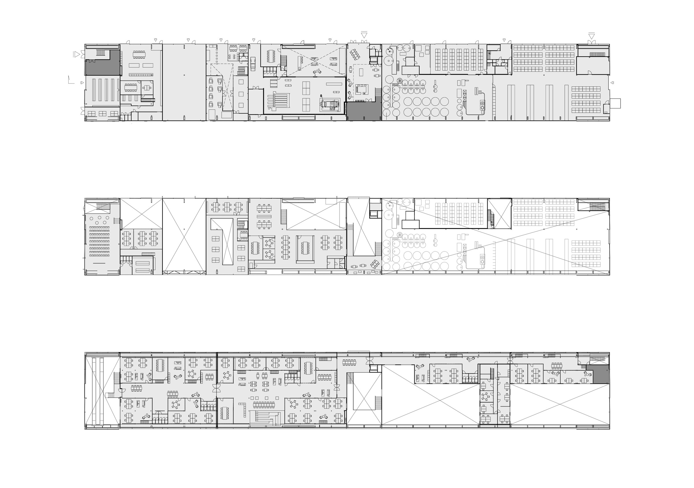
In het Werkspoorkwartier van Utrecht bevindt zich een immense industriële loods van 175 meter lang. De fabriek is samen met een aantal andere gebouwen onderdeel van het oude Werkspoor. Hier werden grootschalige staalconstructies verwerkt voor weg en waterbouw. De meeste gebouwen zijn inmiddels gesloopt, maar samen met de Werkspoorkathedraal vormt het gebouw de aanjager van het gebied en is het een symbool voor circulaire gebiedsontwikkeling. In 2018 won het werkspoorkwartier de ABN AMRO Circular Economy Award. De Werkspoorfabriek is geen monument, maar een zeer kenmerkend grootschalig voorbeeld van industrieel erfgoed. De opdrachtgever is de uitdaging aangegaan om het gebouw te behouden en te activeren met een breed pallet aan werk gerelateerde functies. De Werkspoorfabriek maakt onderdeel uit van een ensemble van bestaande gebouwen en het Hof van Cartesius, een circulaire broedplaats. Voor Utrecht is het een unieke plek, waarbij heden en verleden op een inspirerende wijze aan elkaar worden gekoppeld.
Functies
In de Werkspoorfabriek zit een scala aan bedrijven van creatieve zelfstandigen tot de grote bierbrouwerij De Leckere. De bedrijven vormen samen een community in de creatieve sector en maakindustrie. Er is horeca en een eventspace om ontmoetingen te stimuleren van verschillende bedrijven, die zich richten op het leerproces van het ‘maken’. Voorbeelden hiervan zijn het opleidingscentrum van Baars & Bloemhoff en Parts On Demand, waar innovatie plaatsvindt op het gebied van 3D printen. Deze bedrijven zijn gevestigd op de begane grond en hebben allen een eigen nieuwe industriële entree. Deze ruimtes zijn dubbel hoog en voorzien van een entresolvloer. Op de 2e en 3e verdieping bevindt zich De Stadstuin. Deze organisatie activeert de community en verhuurt ruimtes aan kleinere en middelgrote creatieve bedrijven. Op de kop van het gebouw is een grote multifunctionele ruimte gemaakt voor diverse doeleinden: feesten, lezingen, workshops en vergaderen met fantastisch uitzicht op het Amsterdam Rijnkanaal. Deze ruimte maakt een breed publiek gebruik van het gebouw mogelijk en toont de ruwheid van het Werkspoorverleden. De oude kraanbaan is behouden en de geur van het verleden is nog aanwezig. Er zijn diverse nieuwe gevelopeningen in de bestaande gevels ten behoeve van de nieuwe functies. Deze openen het gebouw en dragen bij aan de levendige wisselwerking tussen binnen en buiten. Belangrijkste doel is activeren van het gebied, het gebouw en de mensen die hier samen werken, denken, leren en maken. Er is zelfs plek gevonden voor het onderbrengen van een klein museum, die het verhaal vertelt over het verleden van Werkspoor en de naastgelegen arbeiderswijk Zuilen.
Concept
Het idee was om binnen de vrije industriële ruimte van 175x25x15 meter een nieuwe structuur aan te brengen waarin bedrijven van verschillende omvang en activiteit zich kunnen vestigen. Zonder dat hierbij het industriële karakter, doorzichten en de lengtewerking worden doorbroken. Om het hoge ambitieniveau te kunnen halen is plaatselijk veel oppervlakte toegevoegd om op andere plekken juist zoveel mogelijk ruimtelijkheid te behouden. Van grote entreeruimten tot kleine eenheden, steeds wisselend qua beleving en uitzicht. Het geheel vormt een grote inspirerende ontdekkingsreis voor gebruikers en bezoekers. Het is een fabriek van verschillende bedrijven ruimtelijk en visueel aan elkaar verbonden. Bij de centrale entree is de volledige hoogte van de loods te zien en twee immense trappen, die je naar boven begeleiden. De kenmerkende lichtstraten en doorlopende stalen vensters zijn gerestaureerd en voorzien van isolatieglas. Het idee is dat met de ingrepen in de gevels en de toegevoegde nieuwe structuur van open vloeren kan worden ingespeeld op een wisselende vraag in de toekomst.
Aansluiten op bestaande structuur
De nieuwe hoofdentree vindt op een frisse manier aansluiting bij het al bestaande jaren 80 gebouw, dat gekenmerkt wordt door zware betonstructuren. ‘De expressieve getande vorm van de nieuwe luifel, is gebaseerd op het stramien van het gebouw. De kenmerkende betonnen kolommen zijn in een soort raster gebouwd, wij wilden daarop aanhaken’, aldus Kellerhuis. Om de bestaande wat zware en gesloten gevel wat te verzachten, is gekozen voor afgeronde, vloeiende vormen in een lichtglanzende messingtint. Deze tint is geïnspireerd op de oorspronkelijke messingkleurige letters van de signing van Buitenlandse Zaken, die voorheen aan de buitenkant van het gebouw te zien was. De witte gekromde gedeeltes van de luifel, die opvallen door hun geweven, netachtige textuur, zijn bekleed met 3D geprinte kunststof (een samenwerking met Aectual). Het materiaal, hergebruikt plastic, is 100% circulair. Wat Zecc betreft was het belangrijk het duurzaamheidsthema, dat ook binnenin het gebouw een grote rol speelt, alvast manifest te maken bij de ingang van het parlementaire gebouw.
Weerkaatsing van het water
Vanuit de hoofdentree lopen de bezoekers naar de beveiligingscheck. De scanstraten, die volledig zijn uitgevoerd in de elegante messingkleur die we reeds buiten zagen, vallen door hun discrete plaatsing in de ruimte buiten het zicht. De check is snel vergeten zodra de bezoekers de centrale hal in stappen. Met zijn hoge rasterplafond, kenmerkende slanke pilaren en de messingkleurige roltrap, is deze ruimte het indrukwekkende oriëntatiepunt van het gebouw. Door de hoge ramen sijpelt niet alleen fijn daglicht binnen; ook ervaart de bezoeker de connectie met de vijver en beplanting in de tuin. De zachte beweging van het water buiten wordt op poëtische wijze weerkaatst door de witte vlakken van het rasterplafond.
Herkenbaarheid
Om de werknemers en bezoekers van deze tijdelijke Tweede Kamervesting zich meteen thuis te laten voelen, zijn bekende elementen uit het gebouw aan het Binnenhof nagebouwd of hergebruikt. Zo zijn er de kenmerkende roltrappen die vanaf de centrale hal direct naar de plenaire zaal op de tweede etage van het gebouw leiden. Kellerhuis: ‘De route van de entree tot de plenaire zaal heeft dezelfde sequentie als op het Binnenhof. Ook de positie van de zaal is op hetzelfde niveau. Deze herkenbaarheid maakt dat je je sneller thuis voelt en als vanzelfsprekend door het gebouw navigeert.’ De voormalige Van Kleffenszaal is door Zecc omgebouwd tot plenaire zaal, de plek waar de Tweede Kamerleden na het zomerreces gaan vergaderen.
Innovatief bouwsysteem
Er is gekozen voor een innovatief, steigerloos, prefab bouwsysteem. De prefabelementen bestaan uit een houtskeletbouwdeel met isolatie, en worden afgewerkt met dunne, minerale steenstrips. Dit heeft een aantal voordelen; doordat de elementen geprefabriceerd worden is de bouwplaats schoon en steigerloos en is een woning direct na het plaatsen van de elementen wind en waterdicht. Een kraan hangt de elementen op zijn plek. De opbouw van de elementen zorgt ook voor een finke gewichts- en kostenbesparing.
Zorgvuldige detaillering
Het toepassen van een innovatief bouwsysteem vraagt om een zorgvuldige detaillering. De grootste uitdaging met dit systeem was, om met de dunne steenstrips een stevig en solide ogend gebouw te maken. We willen immers de krachtige Europese stad laten zien. Er is dan ook intensief met de fabrikant samengewerkt om dit voor elkaar te krijgen op zo’n manier dat het ook bouwkundig goed gaat. Er is veel tijd gestoken in aansluitingen en hoekoplossingen. De naden van de prefabelementen zijn weggewerkt in reliëf en schaduwvoegen. De toepassing van minerale strips gaf de mogelijkheid om een grote verscheidenheid aan ‘metselwerk’-verbanden toe te passen wat de gebouwen een grote rijkheid in architectuur oplevert. De strip zelf is groter dan een standaard waalformaat, waardoor een robuuster gevelbeeld ontstaat. Op plintniveau in de onderste twee lagen, waar de bezoeker het gebouw aanraakt of een fets tegenaan zet, is gekleurd beton gebruikt.
Samenleven
De hoge mate van sociale controle en ontmoeting is een belangrijk uitgangspunt voor het ontwerp. Dit wordt op verschillende manieren gestimuleerd. De videwoningen liggen rondom op maaiveldniveau en hebben een eigen voordeur aan de straat. Hierdoor is het gebouw aan alle kanten open, toegankelijk en levendig; hier wordt gewoond. De trappenhuizen zijn strategisch geplaatst en zijn zowel aan de straat als aan de hofzijde toegankelijk. De toegang tot kleine fetsenstallingen vindt plaats vanuit het centrale binnenhof, waardoor ontmoetingen worden gestimuleerd. De meeste buitenruimten zijn langs de galerij, aan de geluidluwe binnenzijde van de hof geplaatst. Het is een unieke oplossing die voor een levendige en sociaal veilige hof zorgt.
Tussenvoorziening
Direct naast de pergola is er een ruimte voor de Tussenvoorziening. Dit is een organisatie die mensen helpt die afkomstig zijn uit de maatschappelijke opvang, bijvoorbeeld door schulden of doordat ze dakloos zijn geweest. In G8 wonen vragende en dragende bewoners; de dragende bewoners kunnen een handje helpen als dat nodig is, met ondersteuning van de Tussenvoorziening.
Verwijzing naar Nederlandse landschap
Buiten de plenaire zaal treffen politici en de pers elkaar bij de welbekende ‘patatbalie’. Door de geknikte vorm, sluit de nieuwe lange balie goed aan bij de reeds genoemde jaren 80 bouwstijl van Apon. Het symbolische ‘voortbouwen op wat er al is’, komt ook tot uiting in de materiaalkeuze van de balie. De houten latten zijn immers hergebruikt uit de oude Van Kleffenszaal.
Naast de plenaire zaal zijn er de zeven commissiezalen die zich als het ware in de ‘coulissen’ van de Statenpassage bevinden. De zalen ogen rustig en hebben dankzij de lichtgrijze tinten en perenhouten desks, die in een halve maanvorm opgesteld staan, een duidelijke samenhang met de plenaire zaal. Het stukwerk op de muren – een abstract gradiënt van golven en grijstinten – verwijst naar het Nederlandse landschap. Een deel van de wanden is bekleed met gesneden repen petfilt, een duurzame akoestische oplossing.
Flexibiliteit
De kern van deze tijdelijke huisvesting van de Tweede Kamer speelt zich af op de onderste drie verdiepingen, met o.a. de Statenpassage, commissiezalen, ledenrestaurant en de plenaire zaal. Toch zijn ook de overige verdiepingen van het gebouw van groot belang: hier zetelen immers de ambtelijke ondersteuning en de fracties. Deze kantooromgeving wordt gekenmerkt door frisse puien, lichte transparante ruimtes en zoveel mogelijk daglicht. In het ontwerp is bewust rekening gehouden met de noodzaak tot interne verschuivingen in het geval van een nieuwe verkiezingsuitslag. Door de plattegrond zo flexibel mogelijk in te vullen, kunnen medewerkers zonder al te veel moeite ‘verhuizen’ binnen het gebouw.
Zecc Architecten werd door het Rijksvastgoedbedrijf geselecteerd voor deze opgave omwille van de pragmatische, gegronde, ‘typisch Nederlandse’ werkwijze waar het bureau om bekend staat. Zelf noemt Zecc deze manier van aanpak ‘Grounded Architecture’, een vorm van ontwerpen die functioneel, duurzaam en zinnenprikkelend is. Deze werkwijze heeft zich bewezen in succesvolle transformaties van openbare gebouwen zoals het Drents Archief en de Utrechtse Bibliotheek aan de Neude. Beide projecten werden gewaardeerd om de ruimtelijke kwaliteit en de juiste balans tussen karakteristieke elementen én nieuwe toevoegingen. In samenwerkingen heeft Zecc de reputatie zich meedenkend en optimistisch op te stellen. Dit profiel, in combinatie met de reeds opgebouwde ervaring en gerealiseerde projecten, sloot wat het Rijksvastgoedbedrijf betreft ideaal aan op de uitdaging een tijdelijk onderkomen te creëren voor de Tweede Kamer.
Meer Transformaties
-
Tijdelijke Huisvesting Tweede Kamer
locatie:Den Haagcategorie:Transformaties, Interieur, Utiliteitm2:80.000opdrachtgever:RijksvastgoedbedrijfTeam:Strukton Worksphereprogramma:publieke entree, plenaire zaal, commissiezalen, kantoren, restaurants en horecaperiode:2017 - 2021 -
Stadsbad Heerlen
locatie:Heerlencategorie:Transformaties, Utiliteit, Interieurm2:1.270opdrachtgever:Gemeente HeerlenTeam:MVRDV, IMd, Nelissen, SkaaLprogramma:Openbaar zwembadperiode:2025 - heden -
Watertoren Utrecht
locatie:Utrechtcategorie:Transformaties, Particulier, Interieurm2:920opdrachtgever:ParticulierTeam:R&R Bouw, Neveschips, IMd, FMax-Isaac, DGMRprogramma:exclusief woonhuis, 3 appartementen, commerciële ruimteperiode:2012 - 2022 -
Cobercofabriek Arnhem
locatie:Arnhemcategorie:Transformaties, Utiliteit, Interieur, Gebiedsontwikkelingm2:16.000opdrachtgever:BPD OntwikkelingTeam:Delva landscape, Orange architects, Studiospaciousprogramma:66 appartementen, 30 ggbperiode:2022 - heden -
De Vasim
locatie:Nijmegencategorie:Transformaties, Utiliteitm2:12.000opdrachtgever:LingottoTeam:KlokGroep, ZUS [Zones Urbaines Sensibles], Croesprogramma:ruimte voor creatieve bedrijven, cultuur, sport, evenementen en horecaperiode:2021 - 2023 -
Gemeentehuis Renswoude
locatie:Renswoudecategorie:Transformaties, Interieur, Utiliteitm2:1.060opdrachtgever:Gemeente RenswoudeTeam:Van Vliet Bouwmanagement, M3E, IBT, Gemeente Renswoude, Bouwbedrijf Osnabrugge, IRP Bouwadviesprogramma:Raadhuis, kantorenperiode:2020 - 2023 -
KPN-hof Apeldoorn
locatie:Apeldoorncategorie:Woningbouw, Transformaties, Gebiedsontwikkelingopdrachtgever:ExploriusTeam:Flux Landscape, Gemeente Apeldoornprogramma:95 woningen, horeca, werken, commerciële ruimteperiode:2023 - heden -
Onderdelenloods
locatie:Utrechtcategorie:Transformaties, Utiliteit, Interieurm2:1.800opdrachtgever:Zecc Vastgoed BVTeam:R&R Bouwprogramma:5 kantoorstudio'speriode:2021 - 2024 -
Duvelhof Tilburg
locatie:Tilburgcategorie:Woningbouw, Transformaties, Utiliteit, Gebiedsontwikkelingm2:8.100Team:Studio REDD, Nico de bont, Hazenberg Bouw, De Bouwecoloogprogramma:creatieve ateliers, 20 appartementen, commerciële ruimte, ondergronds parkerenperiode:2020 - heden -
Stolpboerderij Bergen
locatie:Bergencategorie:Transformaties, Particulier, Interieuropdrachtgever:ParticulierTeam:BOOM landscapeprogramma:Hedendaags familiehuisperiode:2022 - heden -
Interieur Bibliotheek Neude
locatie:Utrechtcategorie:Transformaties, Utiliteit, Interieurm2:9.000opdrachtgever:De Bibliotheek UtrechtTeam:Rijnboutt, Jurriens B.V. maar! bouwmanagement, Coors, Keijsers, Gispenprogramma:bibliotheek, kantoren, horeca, vergaderzalen, auditoriumperiode:2015 - 2020 -
Steel Craft House
locatie:Utrechtcategorie:Transformaties, Particulierm2:120opdrachtgever:R. Manders en H. CaspersenTeam:staalstudio, vrienden, vof de Bouwmaatprogramma:woningperiode:2011 - 2020 -
Visie De Loodsen - Spoorzone Zwolle
locatie:Spoorzone Zwollecategorie:Transformaties, Gebiedsontwikkelingm2:78.000opdrachtgever:NS / Museum de Fundatie / ArtEZ / Cibap / Gemeente ZwolleTeam:BGSVprogramma:museum, onderwijs, creatieve en culturele bedrijvigheid, innovatie district, wonen, kantoor, culturele voorzieningen, horeca, exposities en tentoonstellingenperiode:2021-2022 -
Woonkerk XL
locatie:Utrechtcategorie:Transformaties, Particulier, Interieurm2:475opdrachtgever:ParticulierTeam:Rietveld interieurbouwprogramma:Transformatie kerk tot ruimtelijk woonhuisperiode:2007-2009 -
Ruimzicht Den Haag
locatie:Den Haagcategorie:Woningbouw, Transformatiesopdrachtgever:Staedion/ Heijmans Vastgoedprogramma:81 sociale huurwoningen, commerciële plintperiode:2020 - heden -
GAK middendeel
locatie:Amsterdamcategorie:Transformaties, Interieur, Utiliteitm2:10.000opdrachtgever:SteenvastgoedTeam:WDJArchitecten, ABT, DPA, Huygenprogramma:120 hotelkamers, loungeperiode:2015 - 2020 -
Buitenplaats Provincie Utrecht
categorie:Transformaties, Particulier, Interieurm2:950opdrachtgever:ParticulierTeam:Van Rossum, Nijeboer - Hage, Remy Meijersprogramma:woonhuis, kantoorperiode:2016 - 2020 -
Transformatie CAB Cartesiusdriehoek
locatie:Utrechtcategorie:Transformaties, Utiliteit, Gebiedsontwikkelingopdrachtgever:BPD / LingottoTeam:ZUS, CCO, Arupprogramma:leisure, maak industrie, appartementenperiode:2017 - 2018 -
Werkspoorfabriek
locatie:Utrechtcategorie:Transformatiesm2:9.200opdrachtgever:Overvecht VastgoedTeam:Van Kessel Bouw, Respace, Kijk op Bouwen, Baas B.V, H2O Installatietechniek, Van Roekel & van Roekel, Wunderhund, Flux Landscapeprogramma:creatieve bedrijven, maakindustrie, bierbrouwerijperiode:2016 - 2019 -
Herbestemming Wagenmakerij
locatie:Utrechtcategorie:Transformatiesm2:1.200opdrachtgever:NS-StationsTeam:Except, Aversch, Niemanprogramma:kantoren, multifunctioneel gebouwperiode:2015 - 2017 -
Studentenhuisvesting
locatie:Utrechtcategorie:Woningbouw, TransformatiesTeam:Versteeg Utrechtprogramma:studentenhuisvestingperiode:2014 - 2016 -
Spoorhuis
locatie:Santpoortcategorie:Transformaties, Particulier, Interieurm2:100opdrachtgever:ParticulierTeam:STUDIO JEROEN VAN ZWETSELAARperiode:2009 - 2012 -
Woonboerderij
locatie:provincie Utrechtcategorie:Transformaties, Particulier, Interieurm2:950opdrachtgever:ParticulierTeam:STUDIO JEROEN VAN ZWETSELAAR, Van Rhenen, BOOMprogramma:woonhuis, kantoor, atelierperiode:2013 - 2016 -
Woonkapel
locatie:Utrechtcategorie:Transformaties, Particulier, Interieurm2:250opdrachtgever:ParticulierTeam:Thesis Bouw Nieuwegeinprogramma:woonhuisperiode:2006 - 2007 -
Sidewall(k)
locatie:Utrechtcategorie:Transformaties, Utiliteitopdrachtgever:Gemeente UtrechtTeam:Bouwbedrijf van den Engelprogramma:Gevel van hergebruikte stoeptegelsperiode:2012 - 2014 -
Drents Archief 3.0
locatie:Assencategorie:Transformaties, Interieur, Utiliteitm2:3.300opdrachtgever:Rijksvastgoedbedrijf en Drents ArchiefTeam:Brands Bouwgroep B.V.programma:Openbaar archiefperiode:2010 - 2012 -
Watertoren
locatie:Den Boschcategorie:Transformatiesopdrachtgever:BOEiTeam:BAM Utiliteitsbouw, Schakel & Schraleprogramma:Kantoren & horecaperiode:2011 - 2014 -
Foodhall MOUT met Brouwerij
locatie:Hilversumcategorie:Transformaties, Utiliteitm2:1.000opdrachtgever:Teus Kroonprogramma:Foodhall, Gooische bierbrouwerijperiode:2016 - 2017 -
Uitkijktoren Sint Jansklooster
locatie:Sint Janskloostercategorie:Transformaties, Interieur, Utiliteitopdrachtgever:BOEi / Vitens en Natuurmonumentenprogramma:Uitkijktorenperiode:2007 - 2014 -
Polygonale Loods
locatie:Tilburgcategorie:Transformaties, Utiliteitm2:1.500opdrachtgever:BOEiTeam:EVE, BAM, Hugo Interieurvormgevingprogramma:restaurant, evenementenruimteperiode:2015 - 2017 -
Duurzaam Monument
locatie:Driebergencategorie:Transformaties, Particulieropdrachtgever:Particulier / Stichting Duurzaam Renoveren van Historische Gebouwenprogramma:woonhuisperiode:2009 - 2010 -
Woonwatertoren
locatie:Soestcategorie:Transformaties, Particulier, Interieurm2:280opdrachtgever:ParticulierTeam:Plegt-Vos. Middelkoopprogramma:woonhuisperiode:2002 - 2004 -
Zwarte parel
locatie:Rotterdamcategorie:Transformaties, Particulieropdrachtgever:ParticulierTeam:Studio Rolf.frprogramma:woning en atelierperiode:2008 - 2012




