
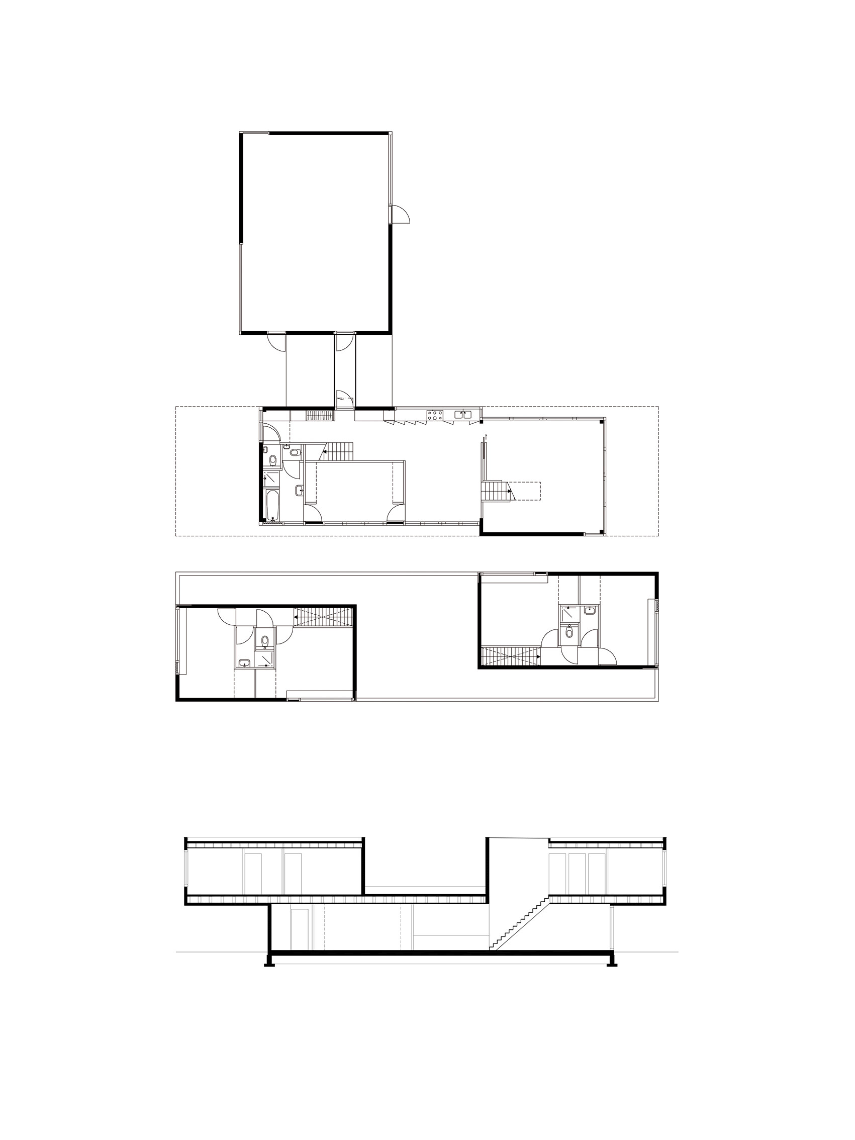
Landscape Villa
This remarkable residential property is a prime example of how the Dutch landscape is being transformed. The open landscape either side of an ancient country lane forms the backdrop to this house. Like the surrounding historic farmhouses, the house has a linear layout. The contours of the sections, which are linked one behind the other, come together to form a unified, statuesque whole. The house is lengthened by the formation of the upper floor in two separate elements that are offset towards the front and rear ends. This produces a silhouette of apparently separate sections that stands out in the surrounding area. In addition, this formation leads to the creation of the requested covered terrace at the rear and a carport at the front.
This house follows the linear structure of the landscape. The black zinc of the outer walls is applied in long, horizontal strips with folded seams. Due to the sheen and somewhat uneven finish of the material, the house reacts in a subtle way to the colours of the Dutch sky. Thanks to the dark, subdued colour, the house blends in with the landscape more than the big farmhouses with their orange roofs.








More Private
-
Water tower Utrecht
location:Utrechtcategory:Transformations, Private, Interiorm2:920client:ParticulierTeam:R&R Bouw, Neveschips, IMd, FMax-Isaac, DGMRprogram:exclusive house, studio apartements, commercial spaceperiod:2012 - 2022 -
Stolpboerderij Bergen
location:Bergencategory:Transformations, Private, Interiorclient:ParticulierTeam:BOOM landscapeprogram:Contemporary family homeperiod:2022 - present -
Steel Craft House
location:Utrechtcategory:Transformations, Privatem2:120client:R. Manders en H. CaspersenTeam:staalstudio, vrienden, vof de Bouwmaatprogram:houseperiod:2011 - 2020 -
Residence Church XL
location:Utrechtcategory:Transformations, Private, Interiorm2:475client:ParticulierTeam:Rietveld interieurbouwprogram:Residential church XL -
Manor Province Utrecht
category:Transformations, Private, Interiorm2:950client:ParticulierTeam:Van Rossum, Nijeboer - Hage, Remy Meijersprogram:house, officeperiod:2016 - 2020 -
Recreation house
location:provincie Utrechtcategory:Privatem2:40client:ParticulierTeam:Roel van Norelperiod:2012 - 2014 -
Rail House
location:Santpoortcategory:Transformations, Private, Interiorm2:100client:ParticulierTeam:STUDIO JEROEN VAN ZWETSELAARperiod:2009 - 2012 -
Farmhouse
location:provincie Utrechtcategory:Transformations, Private, Interiorm2:950client:ParticulierTeam:STUDIO JEROEN VAN ZWETSELAAR, Van Rhenen, BOOMprogram:housing, office, studioperiod:2013 - 2016 -
Chapel of Living
location:Utrechtcategory:Transformations, Private, Interiorm2:250client:ParticulierTeam:Thesis Bouw Nieuwegeinprogram:residentialperiod:2006 - 2007 -
Brick House
location:Groenekancategory:Privateclient:ParticulierTeam:Van Rhenenprogram:detached dwellingperiod:2010 - 2013 -
Landscape Villa
location:Vriezenveencategory:Privateclient:ParticulierTeam:Westerhofprogram:residentialperiod:2005 - 2006 -
Sustainable Monument
location:Driebergencategory:Transformations, Privateclient:Particulier / Stichting Duurzaam Renoveren van Historische Gebouwenprogram:residentialperiod:2009 - 2010 -
Watertower Dwelling
location:Soestcategory:Transformations, Private, Interiorm2:280client:ParticulierTeam:Plegt-Vos. Middelkoopprogram:residentialperiod:2002 - 2004 -
Black Pearl
location:Rotterdamcategory:Transformations, Privateclient:ParticulierTeam:Studio Rolf.frprogram:house and workshopperiod:2008 - 2012 -
Villa in the Woods
location:Soestcategory:Privatem2:450client:ParticulierTeam:Van Rhenenprogram:Villaperiod:2007 - 2009