Rail House
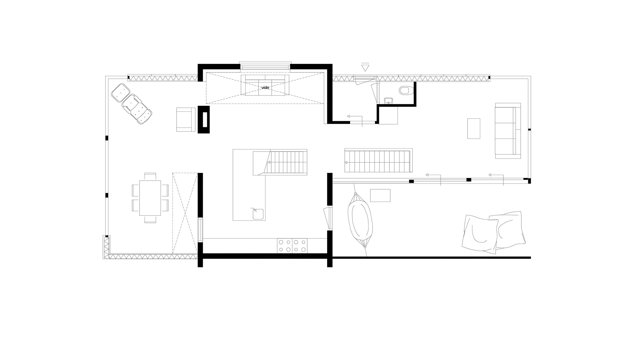
The project involves the transformation and expansion of a railway cottage next to station Santpoort-Noord. The railway house is on one side bordered by the railway line between Amsterdam and IJmuiden and on the other side by the National Park South Kennemerland. The contrast between the straight metal rails and the softness of the dunes is the basic idea for the metamorphosis of this railway house. The hardness of steel, concrete and glass across waving grass, shells and wood.The picturesque railway house is almost brutally shot through with a large cortensteel volume. On both ends of the extension large glass surfaces guide our focus towards the surrounding greenery. The old railway cottage is on the inside almost unchanged.
The remains of numerous alterations have been removed, leaving a pure and characteristic brick cottage. This old section provides security and simultaneously connects all contiguous open spaces of the house. From the middle of the house you will experience long sightlines and a waterfall staircase connecting the various floors.
More Transformations
-
Temporary accommodation for the House of Representatives
location:Den Haagcategory:Transformations, Interior, Public buildingsm2:80.000client:RijksvastgoedbedrijfTeam:Strukton Worksphereprogram:offices, restaurants, meeting rooms, public entrance & cateringperiod:2017 - 2021 -
Stadsbad Heerlen
location:Heerlencategory:Transformations, Public buildings, Interiorm2:1.270client:Gemeente HeerlenTeam:MVRDV, IMd, Nelissen, SkaaLprogram:public swimming poolperiod:2025 - present -
Water tower Utrecht
location:Utrechtcategory:Transformations, Private, Interiorm2:920client:ParticulierTeam:R&R Bouw, Neveschips, IMd, FMax-Isaac, DGMRprogram:exclusive house, studio apartements, commercial spaceperiod:2012 - 2022 -
Cobercofabriek Arnhem
location:Arnhemcategory:Transformations, Public buildings, Interior, Urban researchm2:16.000client:BPD OntwikkelingTeam:Delva landscape, Orange architects, Studiospaciousprogram:66 apartements, 30 ground-level residencesperiod:2022 - present -
De Vasim
location:Nijmegencategory:Transformations, Public buildingsm2:12.000client:LingottoTeam:KlokGroep, ZUS [Zones Urbaines Sensibles], Croesprogram:space for creative companies, culture, sports, events and cateringperiod:2021 - 2023 -
Town Hall Renswoude
location:Renswoudecategory:Transformations, Interior, Public buildingsm2:1.060client:Gemeente RenswoudeTeam:Van Vliet Bouwmanagement, M3E, IBT, Gemeente Renswoude, Bouwbedrijf Osnabrugge, IRP Bouwadviesprogram:Town hall, officesperiod:2020 - 2023 -
KPN-hof Apeldoorn
location:Apeldoorncategory:Housing, Transformations, Urban researchclient:ExploriusTeam:Flux Landscape, Gemeente Apeldoornprogram:95 residential houses, catering, office, commercial spaceperiod:2023 - present -
Onderdelenloods
location:Utrechtcategory:Transformations, Public buildings, Interiorm2:1.800client:Zecc Vastgoed BVTeam:R&R Bouwprogram:5 office studiosperiod:2021 - 2024 -
Duvelhof Tilburg
location:Tilburgcategory:Housing, Transformations, Public buildings, Urban researchm2:8.100Team:Studio REDD, Nico de bont, Hazenberg Bouw, De Bouwecoloogprogram:creative workshop studio's, 20 apartments, commercial space, underground parkingperiod:2020 - present -
Stolpboerderij Bergen
location:Bergencategory:Transformations, Private, Interiorclient:ParticulierTeam:BOOM landscapeprogram:Contemporary family homeperiod:2022 - present -
Interior Library Neude
location:Utrechtcategory:Transformations, Public buildings, Interiorm2:9.000client:De Bibliotheek UtrechtTeam:Rijnboutt, Jurriens B.V. maar! bouwmanagement, Coors, Keijsers, Gispenprogram:library, offices, hospitality, meeting rooms, auditoriumperiod:2015 - 2020 -
Steel Craft House
location:Utrechtcategory:Transformations, Privatem2:120client:R. Manders en H. CaspersenTeam:staalstudio, vrienden, vof de Bouwmaatprogram:houseperiod:2011 - 2020 -
De Loodsen - Spoorzone Zwolle
location:Spoorzone Zwollecategory:Transformations, Urban researchm2:78.000client:NS / Museum de Fundatie / ArtEZ / Cibap / Gemeente ZwolleTeam:BGSVprogram:museum, education, creative and cultural activity, innovation district, living, office, cultural facilities, catering, expositions and exhibitionsperiod:2021-2022 -
Residence Church XL
location:Utrechtcategory:Transformations, Private, Interiorm2:475client:ParticulierTeam:Rietveld interieurbouwprogram:Residential church XL -
Ruimzicht Den Haag
location:Den Haagcategory:Housing, Transformationsclient:Staedion/ Heijmans Vastgoedprogram:81 apartmentsperiod:2020 - present -
GAK middle part
location:Amsterdamcategory:Transformations, Interior, Public buildingsm2:10.000client:SteenvastgoedTeam:WDJArchitecten, ABT, DPA, Huygenprogram:120 hotel rooms, loungeperiod:2015 - 2019 -
Manor Province Utrecht
category:Transformations, Private, Interiorm2:950client:ParticulierTeam:Van Rossum, Nijeboer - Hage, Remy Meijersprogram:house, officeperiod:2016 - 2020 -
Transformation CAB Cartesiusdriehoek
location:Utrechtcategory:Transformations, Public buildings, Urban researchclient:BPD / LingottoTeam:ZUS, CCO, Arupprogram:leisure, apartments, manufacturing industryperiod:2017 - 2018 -
Werkspoor factory
location:Utrechtcategory:Transformationsm2:9.200client:Overvecht VastgoedTeam:Van Kessel Bouw, Respace, Kijk op Bouwen, Baas B.V, H2O Installatietechniek, Van Roekel & van Roekel, Wunderhund, Flux Landscapeprogram:creative companies, manufacturing industry, beer breweryperiod:2016 - 2019 -
Transformation Train Depot
location:Utrechtcategory:Transformationsm2:1.200client:NS-StationsTeam:Except, Aversch, Niemanprogram:offices, multifunctional buildingperiod:2015 - 2017 -
Student housing
location:Utrechtcategory:Housing, TransformationsTeam:Versteeg Utrechtprogram:student housingperiod:2014 - 2016 -
Rail House
location:Santpoortcategory:Transformations, Private, Interiorm2:100client:ParticulierTeam:STUDIO JEROEN VAN ZWETSELAARperiod:2009 - 2012 -
Farmhouse
location:provincie Utrechtcategory:Transformations, Private, Interiorm2:950client:ParticulierTeam:STUDIO JEROEN VAN ZWETSELAAR, Van Rhenen, BOOMprogram:housing, office, studioperiod:2013 - 2016 -
Chapel of Living
location:Utrechtcategory:Transformations, Private, Interiorm2:250client:ParticulierTeam:Thesis Bouw Nieuwegeinprogram:residentialperiod:2006 - 2007 -
Sidewall(k)
location:Utrechtcategory:Transformations, Public buildingsclient:Gemeente UtrechtTeam:Bouwbedrijf van den Engelprogram:attach old wallperiod:2012 - 2014 -
Drents Archive 3.0
location:Assencategory:Transformations, Interior, Public buildingsm2:3.300client:Rijksvastgoedbedrijf en Drents ArchiefTeam:Brands Bouwgroep B.V.program:Public Archiveperiod:2010 - 2012 -
Water tower Den Bosch
location:Den Boschcategory:Transformationsclient:BOEiTeam:BAM Utiliteitsbouw, Schakel & Schraleprogram:Offices, Hospitality industryperiod:2011 - 2014 -
Food Hall MOUT with Beer Brewery
location:Hilversumcategory:Transformations, Public buildingsm2:1.000client:Teus Kroonprogram:Food Hall, Gooische Beer Breweryperiod:2016 - 2017 -
Water tower
location:Sint Janskloostercategory:Transformations, Interior, Public buildingsclient:BOEi / Vitens en Natuurmonumentenprogram:watchtowerperiod:2007 - 2014 -
Polygonal Workshop
location:Tilburgcategory:Transformations, Public buildingsm2:1.500client:BOEiTeam:EVE, BAM, Hugo Interieurvormgevingprogram:restaurant, event spaceperiod:2015 - 2017 -
Sustainable Monument
location:Driebergencategory:Transformations, Privateclient:Particulier / Stichting Duurzaam Renoveren van Historische Gebouwenprogram:residentialperiod:2009 - 2010 -
Watertower Dwelling
location:Soestcategory:Transformations, Private, Interiorm2:280client:ParticulierTeam:Plegt-Vos. Middelkoopprogram:residentialperiod:2002 - 2004 -
Black Pearl
location:Rotterdamcategory:Transformations, Privateclient:ParticulierTeam:Studio Rolf.frprogram:house and workshopperiod:2008 - 2012
More Private
-
Water tower Utrecht
location:Utrechtcategory:Transformations, Private, Interiorm2:920client:ParticulierTeam:R&R Bouw, Neveschips, IMd, FMax-Isaac, DGMRprogram:exclusive house, studio apartements, commercial spaceperiod:2012 - 2022 -
Stolpboerderij Bergen
location:Bergencategory:Transformations, Private, Interiorclient:ParticulierTeam:BOOM landscapeprogram:Contemporary family homeperiod:2022 - present -
Steel Craft House
location:Utrechtcategory:Transformations, Privatem2:120client:R. Manders en H. CaspersenTeam:staalstudio, vrienden, vof de Bouwmaatprogram:houseperiod:2011 - 2020 -
Residence Church XL
location:Utrechtcategory:Transformations, Private, Interiorm2:475client:ParticulierTeam:Rietveld interieurbouwprogram:Residential church XL -
Manor Province Utrecht
category:Transformations, Private, Interiorm2:950client:ParticulierTeam:Van Rossum, Nijeboer - Hage, Remy Meijersprogram:house, officeperiod:2016 - 2020 -
Recreation house
location:provincie Utrechtcategory:Privatem2:40client:ParticulierTeam:Roel van Norelperiod:2012 - 2014 -
Rail House
location:Santpoortcategory:Transformations, Private, Interiorm2:100client:ParticulierTeam:STUDIO JEROEN VAN ZWETSELAARperiod:2009 - 2012 -
Farmhouse
location:provincie Utrechtcategory:Transformations, Private, Interiorm2:950client:ParticulierTeam:STUDIO JEROEN VAN ZWETSELAAR, Van Rhenen, BOOMprogram:housing, office, studioperiod:2013 - 2016 -
Chapel of Living
location:Utrechtcategory:Transformations, Private, Interiorm2:250client:ParticulierTeam:Thesis Bouw Nieuwegeinprogram:residentialperiod:2006 - 2007 -
Brick House
location:Groenekancategory:Privateclient:ParticulierTeam:Van Rhenenprogram:detached dwellingperiod:2010 - 2013 -
Landscape Villa
location:Vriezenveencategory:Privateclient:ParticulierTeam:Westerhofprogram:residentialperiod:2005 - 2006 -
Sustainable Monument
location:Driebergencategory:Transformations, Privateclient:Particulier / Stichting Duurzaam Renoveren van Historische Gebouwenprogram:residentialperiod:2009 - 2010 -
Watertower Dwelling
location:Soestcategory:Transformations, Private, Interiorm2:280client:ParticulierTeam:Plegt-Vos. Middelkoopprogram:residentialperiod:2002 - 2004 -
Black Pearl
location:Rotterdamcategory:Transformations, Privateclient:ParticulierTeam:Studio Rolf.frprogram:house and workshopperiod:2008 - 2012 -
Villa in the Woods
location:Soestcategory:Privatem2:450client:ParticulierTeam:Van Rhenenprogram:Villaperiod:2007 - 2009
More Interior
-
Temporary accommodation for the House of Representatives
location:Den Haagcategory:Transformations, Interior, Public buildingsm2:80.000client:RijksvastgoedbedrijfTeam:Strukton Worksphereprogram:offices, restaurants, meeting rooms, public entrance & cateringperiod:2017 - 2021 -
Stadsbad Heerlen
location:Heerlencategory:Transformations, Public buildings, Interiorm2:1.270client:Gemeente HeerlenTeam:MVRDV, IMd, Nelissen, SkaaLprogram:public swimming poolperiod:2025 - present -
Water tower Utrecht
location:Utrechtcategory:Transformations, Private, Interiorm2:920client:ParticulierTeam:R&R Bouw, Neveschips, IMd, FMax-Isaac, DGMRprogram:exclusive house, studio apartements, commercial spaceperiod:2012 - 2022 -
Cobercofabriek Arnhem
location:Arnhemcategory:Transformations, Public buildings, Interior, Urban researchm2:16.000client:BPD OntwikkelingTeam:Delva landscape, Orange architects, Studiospaciousprogram:66 apartements, 30 ground-level residencesperiod:2022 - present -
Nobelkwartier De Bilt
location:De Biltcategory:Housing, Public buildings, Interiorm2:6.400client:Gemeente De Bilt / H.F. Witte Centrum / WoongroenTeam:IBT, DWA, M3E, Anyverse, Odin Wenting bouwadviesprogram:sportcentre, meeting center with catering, 10 appartements, 8 ggbperiod:2019 - present -
Town Hall Renswoude
location:Renswoudecategory:Transformations, Interior, Public buildingsm2:1.060client:Gemeente RenswoudeTeam:Van Vliet Bouwmanagement, M3E, IBT, Gemeente Renswoude, Bouwbedrijf Osnabrugge, IRP Bouwadviesprogram:Town hall, officesperiod:2020 - 2023 -
Onderdelenloods
location:Utrechtcategory:Transformations, Public buildings, Interiorm2:1.800client:Zecc Vastgoed BVTeam:R&R Bouwprogram:5 office studiosperiod:2021 - 2024 -
Stolpboerderij Bergen
location:Bergencategory:Transformations, Private, Interiorclient:ParticulierTeam:BOOM landscapeprogram:Contemporary family homeperiod:2022 - present -
Interior Library Neude
location:Utrechtcategory:Transformations, Public buildings, Interiorm2:9.000client:De Bibliotheek UtrechtTeam:Rijnboutt, Jurriens B.V. maar! bouwmanagement, Coors, Keijsers, Gispenprogram:library, offices, hospitality, meeting rooms, auditoriumperiod:2015 - 2020 -
Residence Church XL
location:Utrechtcategory:Transformations, Private, Interiorm2:475client:ParticulierTeam:Rietveld interieurbouwprogram:Residential church XL -
GAK middle part
location:Amsterdamcategory:Transformations, Interior, Public buildingsm2:10.000client:SteenvastgoedTeam:WDJArchitecten, ABT, DPA, Huygenprogram:120 hotel rooms, loungeperiod:2015 - 2019 -
Manor Province Utrecht
category:Transformations, Private, Interiorm2:950client:ParticulierTeam:Van Rossum, Nijeboer - Hage, Remy Meijersprogram:house, officeperiod:2016 - 2020 -
Rail House
location:Santpoortcategory:Transformations, Private, Interiorm2:100client:ParticulierTeam:STUDIO JEROEN VAN ZWETSELAARperiod:2009 - 2012 -
Farmhouse
location:provincie Utrechtcategory:Transformations, Private, Interiorm2:950client:ParticulierTeam:STUDIO JEROEN VAN ZWETSELAAR, Van Rhenen, BOOMprogram:housing, office, studioperiod:2013 - 2016 -
Chapel of Living
location:Utrechtcategory:Transformations, Private, Interiorm2:250client:ParticulierTeam:Thesis Bouw Nieuwegeinprogram:residentialperiod:2006 - 2007 -
Drents Archive 3.0
location:Assencategory:Transformations, Interior, Public buildingsm2:3.300client:Rijksvastgoedbedrijf en Drents ArchiefTeam:Brands Bouwgroep B.V.program:Public Archiveperiod:2010 - 2012 -
Office Building KRO-NCRV
location:Hilversumcategory:Interiorm2:6.000client:KRO-NCRVTeam:CBREprogram:offices, studio`speriod:2014 - 2015 -
Water tower
location:Sint Janskloostercategory:Transformations, Interior, Public buildingsclient:BOEi / Vitens en Natuurmonumentenprogram:watchtowerperiod:2007 - 2014 -
Vereniging Eigen Huis
location:Amersfoortcategory:Interiorm2:5.500client:Vereniging Eigen HuisTeam:Bouwbedrijf Heldoornprogram:officesperiod:2014 - 2016 -
Watertower Dwelling
location:Soestcategory:Transformations, Private, Interiorm2:280client:ParticulierTeam:Plegt-Vos. Middelkoopprogram:residentialperiod:2002 - 2004 -
Heldergroen
location:Haarlemcategory:Interiorm2:150program:officespaceperiod:2009




